您好:欢迎进入西安轩宇风装饰工程有限公司官方网站!
企业微博   |  企业微信       网站地图
029-88601655
服务热线:18966755507
碑林区·乐居场摩登COM3#-509 乐居场摩登COM公寓
风       格: 全房整改造
户       型: 两室(高层带电梯)
面       积: 105
区       域: 碑林区
主: 李先生
施工队长: 轩宇风装饰
师: 轩宇风装饰
开工时间: 2021-11-18
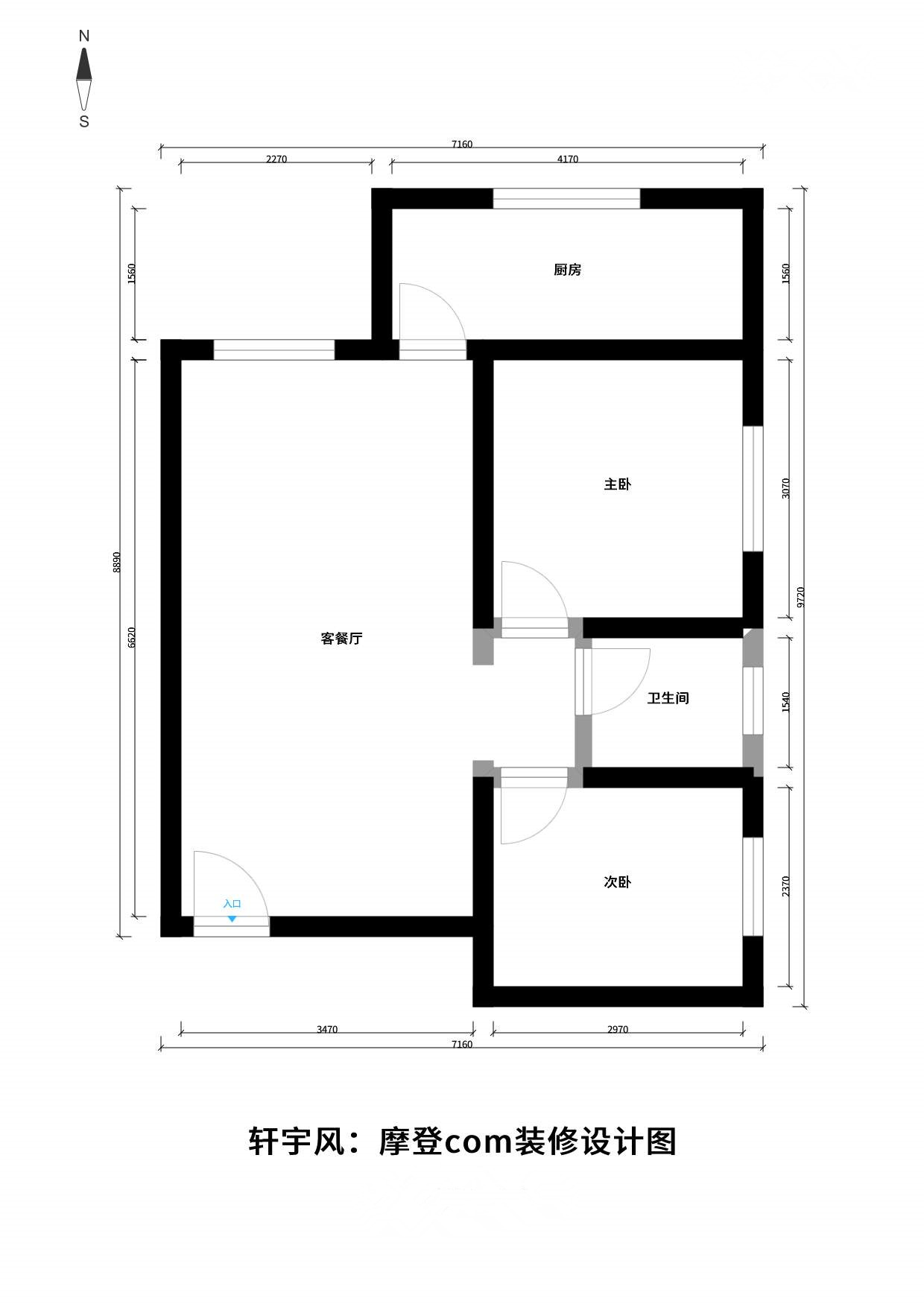
装修户型平面图
装修前房屋概况
成品家具搬移保护
拆除工程项目
水路电路改造
壁挂锅炉管路改造
水路打压项目
更换窗户防盗网
定制包立管
找平防水工程
木工隔墙吊顶阶段
泥瓦工铺砖阶段
乳胶漆墙面阶段
厨房橱柜吊柜安装
成品安装阶段
客户验收阶段
装修户型平面图
装修前房屋概况
成品家具搬移保护
拆除工程项目
乳胶漆墙面阶段
成品安装阶段
您的小区:
您的姓名:
您的电话:
现已经报名业主
  • · 王先生-
  • · -

装修户型平面图

装修前房屋概况

成品家具搬移保护

拆除工程项目

乳胶漆墙面阶段

成品安装阶段

版权所有:西安轩宇风装饰工程有限公司 未经许可严禁拷贝或镜像 备案号:陕ICP备19004346号-1

技术支持:

免费预约报名
感谢您领取透明装修报价
请留下您的信息,方便我们为您提供更贴心的服务
您的姓名:
您的小区:
您的手机号:
 
关闭窗口
029-88601655