









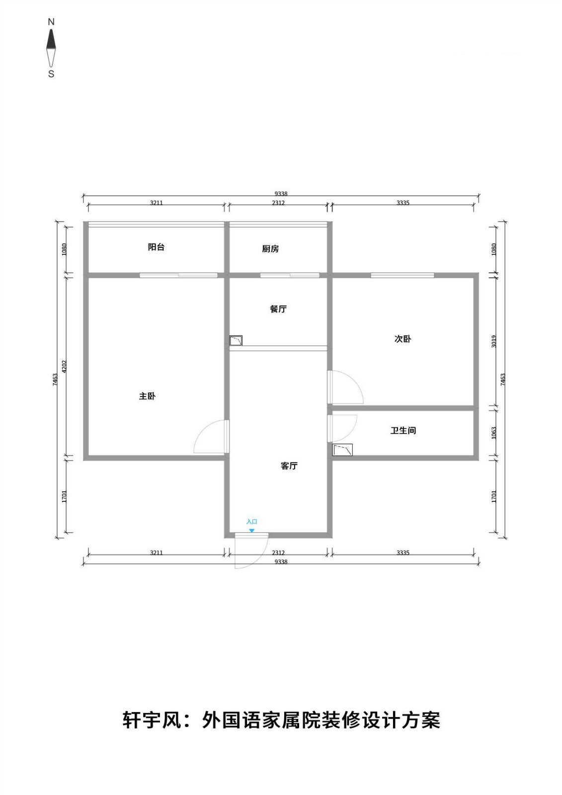
外国语大学家属院

按此风格设计
提交信息,试试看!
已有96人提交
版权所有:西安轩宇风装饰工程有限公司
未经许可严禁拷贝或镜像
备案号:陕ICP备19004346号-1
技术支持: