您好:欢迎进入西安轩宇风装饰工程有限公司官方网站!
企业微博   |  企业微信       网站地图
029-88601655
服务热线:18966755507
主页 > 精彩案例>乐居场摩登COM

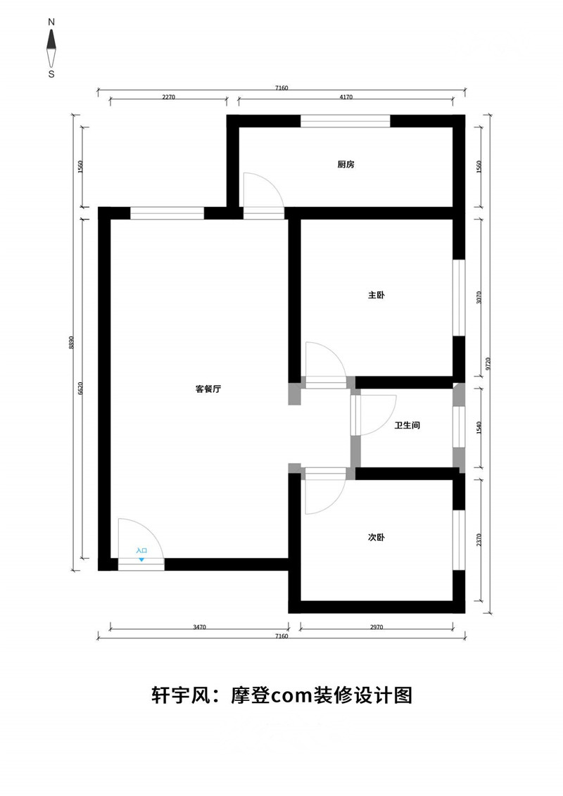
乐居场摩登COM

装修详情
累加访问量726
预约业主共575
  • 局部: 厨房整改
  • 户型: 两居室
  • 风格: 现代简约风格
  • 区域: 碑林区
  • 设计师: 轩宇风装饰
  • 工程造价: 3.5W

评价

我要评价

满意度:
验证码: 验证码,看不清楚?请点击刷新验证码

设计师

轩宇风装饰
免费预约 在线Q Ta

按此风格设计

已有575人提交

提交信息,试试看!

已有96人提交

版权所有:西安轩宇风装饰工程有限公司 未经许可严禁拷贝或镜像 备案号:陕ICP备19004346号-1

技术支持:

免费预约报名
感谢您领取透明装修报价
请留下您的信息,方便我们为您提供更贴心的服务
您的姓名:
您的小区:
您的手机号:
 
关闭窗口
029-88601655