您好:欢迎进入西安轩宇风装饰工程有限公司官方网站!
企业微博   |  企业微信       网站地图
029-88601655
服务热线:18966755507
主页 > 精彩案例>石油大学家属院北区

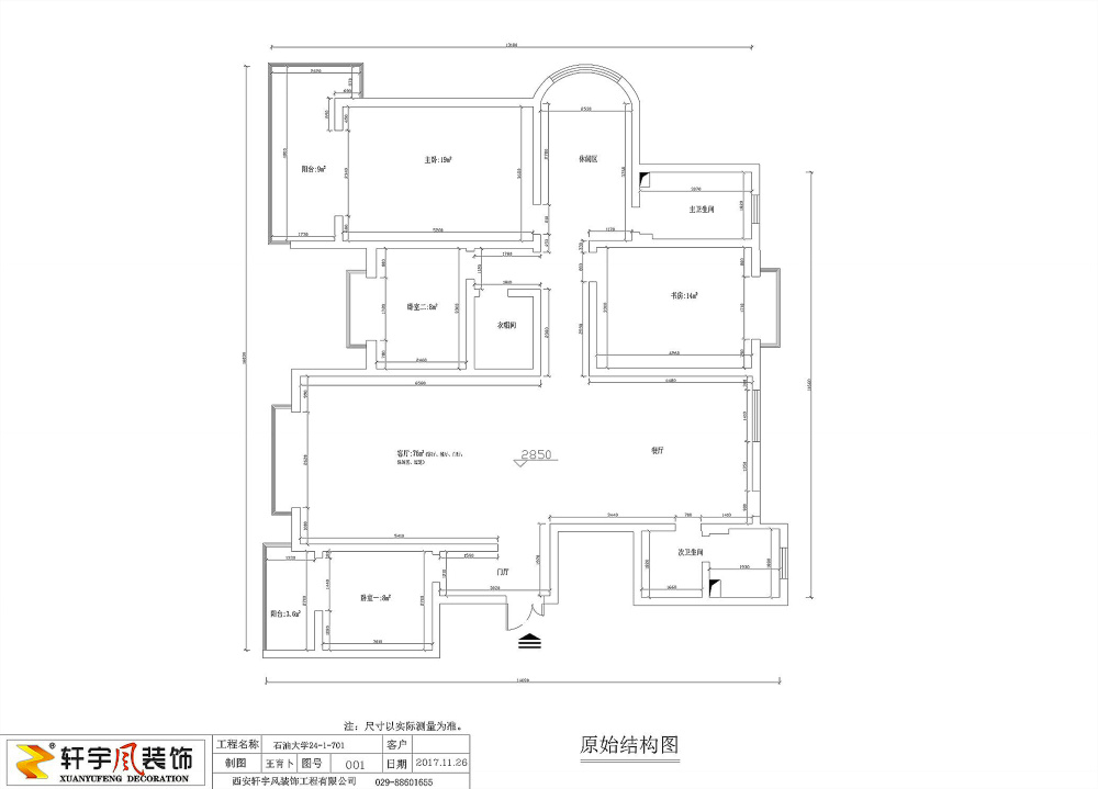
石油大学家属院北区

装修详情
累加访问量4978
预约业主共125
  • 局部: 不搬家墙面刷新服务
  • 户型: 三居室
  • 风格: 混搭风格
  • 区域: 雁塔区
  • 设计师: 轩宇风装饰

评价

我要评价

满意度:
验证码: 验证码,看不清楚?请点击刷新验证码

设计师

轩宇风装饰
免费预约 在线Q Ta

按此风格设计

已有125人提交

提交信息,试试看!

已有96人提交

版权所有:西安轩宇风装饰工程有限公司 未经许可严禁拷贝或镜像 备案号:陕ICP备19004346号-1

技术支持:

免费预约报名
感谢您领取透明装修报价
请留下您的信息,方便我们为您提供更贴心的服务
您的姓名:
您的小区:
您的手机号:
 
关闭窗口
029-88601655